IMAIKE F SQUARE(イマイケ エフ スクエア)今池エリア、2020年竣工5階建の貸店舗物件のご紹介です。
2024年12月9日
IMAIKE F SQUARE (イマイケ エフ スクエア)
今池エリア、2020年竣工5階建の貸店舗物件のご紹介です。
募集業種は事務所・エステサロン・クリニック・フィットネスジム・飲食等の店舗での募集となりワンフロアワンテナント物件になります。

広小路通り沿い、地下鉄「今池」駅4番出口 徒歩3分の好立地。

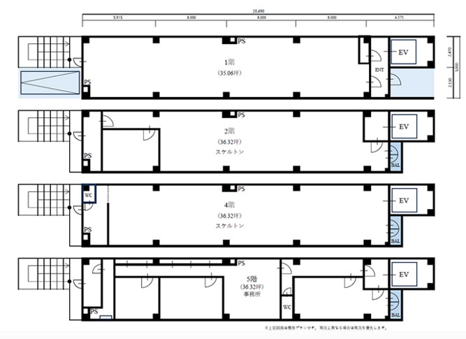
間取り↓
1フロア1テナントの間取りになっております。

ビルエントランス↓
1階EVホール↓

各階EVホール↓

貸室内↓
1F半スケルトンで空調設備がございます。

4F 内装付になりますので即入居可能です。↓

5F 内装付で即入居可能です。

<今回募集区画>
貸室 1階 35.06坪
2、4階 各36.32坪
賃料 1階 410,000円 + 18,000円 税別
2階 370,000円 + 24,000円 税別
4階360,000円 + 24,000円 税別
保証金 賃料の3ヶ月分
物件についてのご内見・業種等のご相談は下記番号までお願いいたします。
TEL 052-973-3344