【東名グランドビル】広小路通り沿いにある駐車場が取れる希少オフィスです。
2025年12月17日
☆広小路通り沿いにある駐車場が取れる希少オフィス☆
名古屋駅から地下鉄東山線「一社駅」から徒歩5分にある
昔ながらの貸しオフィス物件のご紹介になります。
一社駅から上社JCT方面に進むと今回ご紹介しているオフィス
ビルに到着となります。

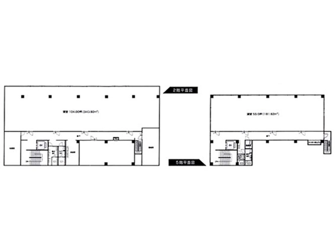
募集区画は50坪クラスですが、分割案も可能となっており
最小で23坪まで可能となっております。




名東区エリアは今月極駐車場の確保が
難しく、様々な建物が建てられたり、建築中もございます。
今回のオフィスビルは敷地内で平面や機械式駐車場を合わせて
ご紹介可能となっております。

ビル内の清掃は毎日清掃スタッフによって美化が保たれています。


ビル周辺になります。緑も多いエリアです。
近くには環状2号線もございますので移動手段が増える場所に
なります。


募集区画も残りわずかとなっておりますのでお早目の
お問合せお待ち申し上げます。
ビル名 東名グランドビル
2階 50.5坪(分割可能)
4階 55坪(分割可能)
それぞれ 賃料坪単価7,900円 共益費坪単価2,000円
敷金6ヶ月 償却30%