【MH筒井町ビル】「車道駅」から徒歩5分、新築ビル1階貸しオフィス物件
2025年12月3日
☆閑静な立地で築浅希少1階物件のご案内☆
地下鉄桜通線「車道駅」から徒歩5分にある昨年竣工した
新築ビル1階貸しオフィス物件のご案内になります。
車道駅から北上すると今回の貸事務所がございます。

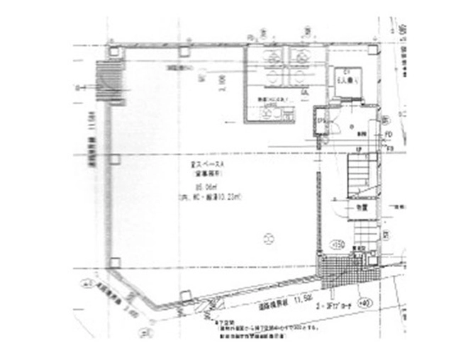
坪数も約25坪あり、貸室内に給排水設備がございます。内装は
事務所内装仕様となり、OAフロア(50mm)です。
蛍光灯はLED仕様となります。


1階区画のみ出入口が2ヶ所ございます。オートロック側は
上の入居者様の出入りがあるので専有口からの出入りがお勧めになります。



3階建てですが、EV完備となります。







如何でしたでしょうか。今回は1階の区画で約25坪となり
今後は上の階で約10坪(空き予定)もございます。
敷地内には付随しておりませんが、近隣で月極駐車場(相場は15,000円前後)ございます。数に限りがございますので、お早目のお問合せお待ち申し上げます。
ビル名 MH筒井町
1階 25.73坪 2024/1/末竣工の新築物件です。
賃料257,000円(税別) 共益費10,000円(税別)
敷金4ヶ月 償却なし 短期違約金あり