【協和錦ビル】地下鉄東山線「栄駅」より徒歩7分の物件です
2026年1月15日
☆名古屋の繁華街にある賃貸オフィス物件のご案内☆
地下鉄東山線「栄駅」より徒歩7分、また地下鉄桜通線「久屋大通駅」より徒歩6分にある貸事務所のご案内です。
場所は中区錦3丁目の繁華街になります。
今回の賃貸オフィス物件の近くには飲食店が多数あり、コンビニやショッピングなど様々や用途にも適している立地になります。

物件のエントランス及び機械式駐車場です。
桜通りから1本入りますが、七間町通にあり、車も止めやすい所にあります。



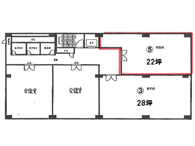
今回の区画は⑤番です。通り面の東側なので採光が取れます。



如何でしたでしょうか?繁華街ですが、人気がある物件なので
お早めのご内見、お問い合わせお待ち申し上げます。
募集条件はコチラ ↓ ↓ ↓
ビル名 協和錦ビル
3階305号室 72.73㎡ 22.00坪
賃料165,000円 共益費55,000円 敷金3ヶ月