【カルム亀島】地下鉄「亀島」駅より徒歩5分の物件です
2026年3月5日
カルム亀島
亀島エリア、1997年竣工のオフィスビルご紹介です!
3階までが事業用の貸室になっております。
地図↓
地下鉄「亀島」駅より徒歩5分、名古屋駅までも10分の立地になっております。

エントランス・EVホール↓


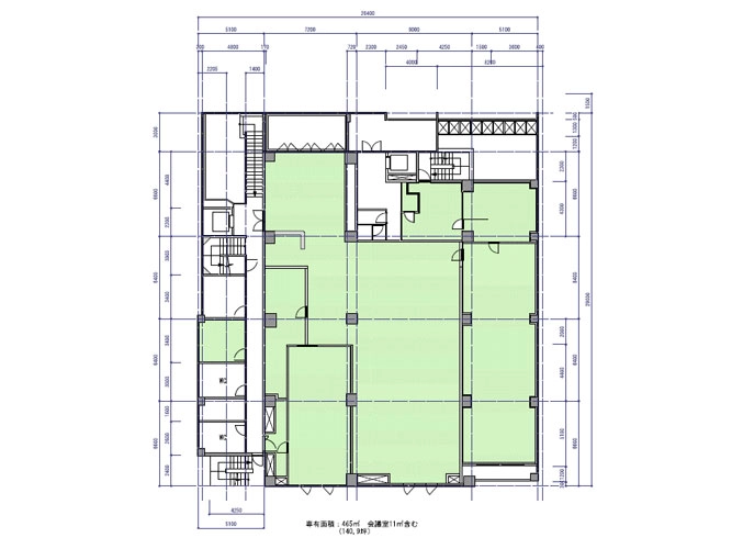
貸室間取り↓

貸室内↓
参考画像になります。




共用部↓

<今回貸室募集条件>
貸室 140.66坪
賃料 @10,000円/坪・税別
共益費 賃料に含む
敷金 賃料の3ヶ月分
ご内覧等、物件についてのご相談は下記番号までお願いいたします!
TEL 052-973-3344