【今池エフワンビル】「今池駅」から徒歩1分の1フロア1テナントビル
2025年12月24日
☆最寄り駅から徒歩1分にある希少物件のご案内☆
名古屋駅から地下鉄東山線、桜通線の二駅交差となる今回の
「今池駅」から徒歩1分にある手頃な1フロア1テナント
物件のご紹介になります。
今池駅2番出口からすぐにある今回の貸事務所物件。
近くにはコンビニヤや飲食店も数多くあり、お昼時には困らない
エリアとなっております。

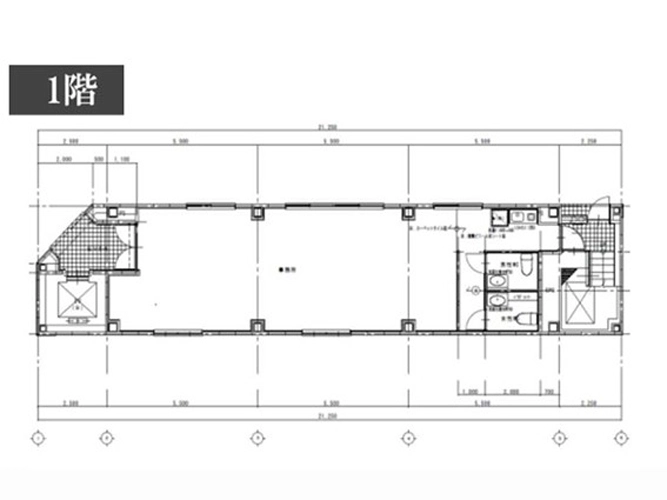
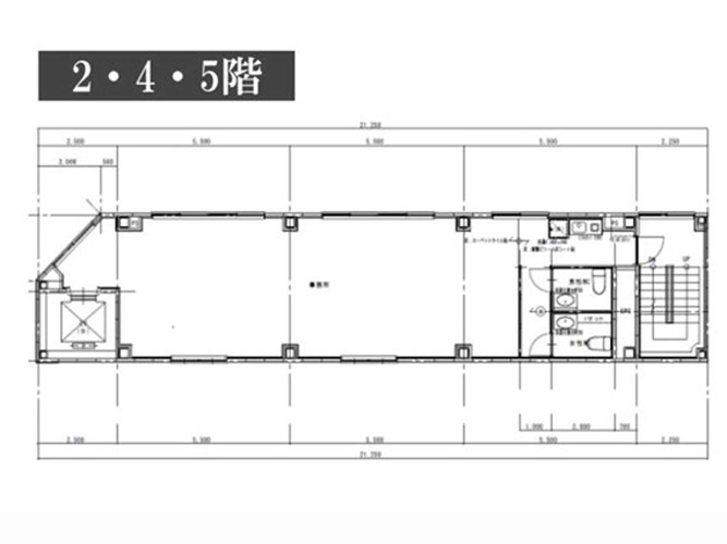
今回の貸店舗事務所は1フロア約20坪程度の広さとなっており
各階に給排水設備も含まれております。
トイレは男女別になっており、使い勝手がよさそうです。


エントランスになります。1フロア1テナントになるので
それぞれEV前でのセキュリティー設定になります。












如何でしたでしょうか。店舗事務所をお探しの方はお早めに
お問い合わせくださいませ。
ビル名 今池エフワンビル
1階20.48坪 坪単価13,000円(共益費込み)
2~5階22坪 坪単価11,000円(共益費込み)
敷金8ヶ月 償却なし 礼金なし
定期借家契約(5年) 水道料3,300円/月 町内会費200円/月